Khi lựa chọn bất kỳ thiết bị nâng kho nào, một trong những quy trình chính là nghiên cứu và xác minh các bảng có các đặc tính kỹ thuật chính. Trong thế giới thiết bị kho bãi, các thông số kỹ thuật được tổ chức theo tiêu chuẩn VDI2198, các bảng liệt kê các thông số kỹ thuật đều có sẵn từ bất kỳ nhà sản xuất nào và nhờ đó, thiết bị có thể dễ dàng so sánh và bạn cũng có thể hiểu liệu thiết bị có hoạt động được hay không trong những điều kiện nhất định.
Tiêu chuẩn VDI2198 chứa các bảng tiêu chuẩn cho nhiều loại thiết bị nâng khác nhau. Các bảng được chia thành các nhóm tham số điển hình, hãy xem xét các nhóm dưới đây:
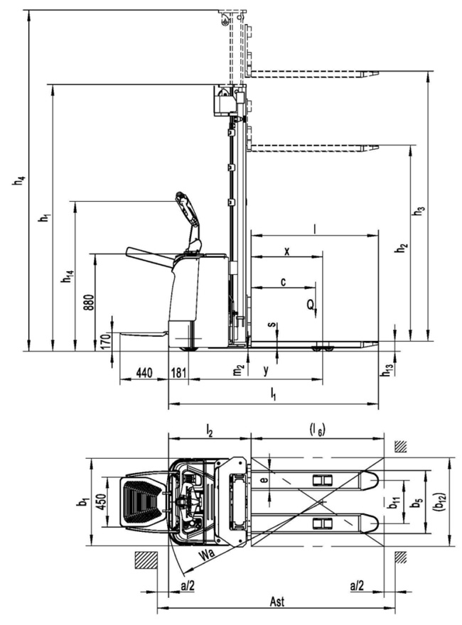
Dấu phân biệt là phần có những thông số cơ bản, cơ bản nhất, từ đó bắt đầu việc lựa chọn thiết bị. Các thông số bao gồm kiểu máy, loại nguồn điện được sử dụng, loại thiết bị (dây dẫn, bệ, đứng hoặc ngồi), sức nâng, tâm tải, khoảng cách từ trục con lăn đến bề mặt trước của càng nâng và kích thước chiều dài cơ sở.
Trong nhóm này, ngoài các tham số rõ ràng, cần chú ý đến các tham số ít rõ ràng hơn nhưng không kém phần quan trọng:
- Khoảng cách trung tâm tải (C mm) - thông số này có nghĩa là khoảng cách trọng tâm của tải của bạn có thể được đặt từ bề mặt phía trước của càng nâng. Thông số điển hình cho pallet Euro là 600 mm - bằng một nửa chiều dài của pallet tiêu chuẩn. Tuy nhiên, giá trị chỉ có giá trị nếu pallet được chất đều. Nếu tâm tải tăng (chiều dài pallet vượt quá 1200 mm hoặc tải không đồng đều) thì khả năng nâng thực tế của thiết bị sẽ giảm để đảm bảo độ ổn định của máy và vận hành an toàn.
- Khoảng cách từ trục các con lăn đến mặt trước càng nâng (Khoảng cách tải, tâm trục dẫn động đến càng nâng, X mm) – thông số này ảnh hưởng trực tiếp đến đặc tính cơ động và ổn định của thiết bị (càng nhỏ thì càng nhỏ). bán kính quay vòng, tuy nhiên đối với một số thiết bị, ví dụ như máy xếp, việc giảm sẽ làm giảm độ ổn định). Mặt khác, đối với xe đẩy tự hành, thông số này rất quan trọng nếu bạn đang làm việc với pallet không đạt tiêu chuẩn hoặc pallet đóng, bởi vì trong trường hợp này, nếu thiết bị có kích thước không phù hợp có thể làm hỏng thùng chứa.
Nhóm thông số phân bổ trọng lượng và tải dọc theo các trục (Trọng lượng) – tính đến các thông số này liên quan đến lớp phủ sàn nơi thiết bị sẽ được vận hành. Theo dõi tải trọng cụ thể trên bề mặt nếu nó bị giới hạn trong phòng của bạn.
Trọng lượng sử dụng (kg) – có thể được chỉ định khi có hoặc không có pin.
Nhóm thông số liên quan đến kích thước bánh xe và khung xe (Lốp, khung xe) - Chú ý đến loại vật liệu phủ bánh xe sử dụng, polyurethane (Vulkolan) ưu tiên sử dụng trên sàn phẳng và khô, cao su sẽ hoạt động tốt hơn trên bề mặt ẩm ướt Tuy nhiên, những bánh xe như vậy sẽ bị mòn nhanh hơn. Việc lựa chọn loại bánh xe phải được tính đến các điều kiện vận hành của bạn; theo quy định, việc thay thế bánh xe bằng loại được yêu cầu không gây ra bất kỳ khó khăn lớn nào.
- Kích thước bánh xe nên được tính đến dựa trên các tiêu chí đơn giản - đường kính và chiều rộng nhỏ hơn sẽ mòn nhanh hơn. Đường kính lớn hơn giúp khắc phục các mặt sàn không bằng phẳng dễ dàng hơn.
- Công thức bánh xe (Bánh xe, số trước/sau) - cho phép bạn hiểu cách tổ chức khung gầm của thiết bị. Các bánh dẫn động có kèm theo chỉ số “x”. Sử dụng ví dụ về công thức 1x+1/4 cho xe xếp, bạn có thể thấy rằng chúng ta có thiết bị có động cơ dẫn động nằm ở bên cạnh, được trang bị một bánh xe bên và bốn con lăn càng nâng. Liên hệ với đối tác của bạn để xác định cấu hình bánh xe được đề xuất cho điều kiện vận hành của bạn. Sự hiện diện của các mối nối, sự không đều, chiều rộng càng nâng, loại lớp phủ và các điều kiện bên ngoài phải được tính đến khi lựa chọn thiết bị. Đối với bề mặt nhẵn, khô, công thức phổ biến nhất là 1x+1/2, 1x+1/4, 1x+2/4 đối với xe nâng và xe đẩy, công thức này sẽ là 1x+2.
Kích thước - một nhóm các thông số cơ bản đặc trưng cho kích thước của thiết bị. Chúng tôi khuyên bạn nên chú ý đến các thông số sau:
- Kích thước của cột khi gập lại (Chiều cao cột được hạ xuống, h1 mm) – chú ý đến sự phù hợp của thiết bị với kích thước của cửa ra vào, cổng, khoang và kệ giá đỡ của bạn.
- Lượng nâng tự do (chiều cao nâng tự do, h2 mm) – lực nâng tự do của càng nâng – lượng nâng của càng nâng đến mức khi các phần chính của cột không được gấp lại. Chức năng này đặc biệt cần thiết nếu bạn làm việc trong phòng có trần thấp, trên xe tải, toa tàu, v.v. Hãy tính đến sự hiện diện của một lưới bổ sung trên các càng nâng vượt quá kích thước của cột khi nâng tối đa - lưới này sẽ làm giảm giá trị h2 (theo định nghĩa liên quan đến tiêu chuẩn VDI2198).
- Chiều cao nâng (Chiều cao nâng, h3 mm) là thông số kỹ thuật chính; xin lưu ý rằng theo tiêu chuẩn VDI2198, tất cả các thông số chiều cao được đo từ vị trí dưới của càng nâng (chiều cao hạ xuống, h13 mm). Khi lựa chọn thiết bị, hãy tính đến chiều cao của kệ giá; chúng tôi khuyên bạn nên nâng chiều cao tối đa của thiết bị cao hơn 150-200 mm so với chiều cao của kệ mà bạn định chất hàng.
- Chiều cao hạ xuống, h13 mm – chú ý đến thông số này, đặc biệt nếu bạn đang làm việc với các pallet không đạt tiêu chuẩn.
- Chiều cao tổng thể tối đa (Chiều cao cột mở rộng, h4 mm) - chiều cao tổng thể tối đa khi càng nâng lên hoàn toàn, có tính đến kích thước của lưới bảo vệ, bởi vì Theo quy định, kích thước này được biểu thị không có lưới tản nhiệt nếu lưới tản nhiệt là tùy chọn.
- Chiều dài của thiết bị tính đến mặt trước của càng nâng (l2 mm) – thông số này đặc trưng cho mức độ nhỏ gọn của thiết bị. Đây là khoảng cách bạn cần thêm vào chiều dài của pallet nếu càng nâng nằm hoàn toàn bên dưới pallet. Kích thước l2 ảnh hưởng trực tiếp đến khả năng cơ động của thiết bị. Đối với những nhà kho có diện tích, không gian chật hẹp thì l2 càng nhỏ càng tốt.
- Chiều rộng tổng thể (Chiều rộng tổng thể, b1 mm) – ảnh hưởng đến khả năng cơ động của thiết bị; đối với thiết bị nhẹ và làm việc trong điều kiện chật hẹp, chiều rộng của thiết bị phải tương xứng hoặc nhỏ hơn chiều rộng của pallet.
- Kích thước càng nâng (Kích thước càng nâng, s/e/l mm), Chiều rộng càng nâng (b5 mm) - xem xét các thông số này liên quan đến thùng chứa của bạn và loại pallet được sử dụng. Theo quy định, các nhà sản xuất khác nhau có các thông số sẵn có gần giống nhau được thiết kế cho các thùng chứa tiêu chuẩn. Tuy nhiên, các thông số kỹ thuật này thường yêu cầu thay đổi khi làm việc với các pallet và hàng hóa không đạt tiêu chuẩn. Liên hệ với nhà cung cấp của bạn để kiểm tra xem có thể sản xuất phiên bản đặc biệt hay không.
- Khoảng sáng gầm ở giữa đế (Khoảng sáng gầm, m2 mm) - thông số này đặc biệt quan trọng nếu thiết bị làm việc trên sàn không bằng phẳng hoặc vượt qua các đường dốc và chướng ngại vật, đặc biệt nếu các đường dốc ngắn với độ cao chênh lệch đáng kể. Trong trường hợp này, rất có thể khung gầm của thiết bị sẽ chạm sàn và thiết bị sẽ không thể hoạt động bình thường. Thông số này ít quan trọng hơn đối với xe đẩy tự hành, vì ngăn chứa pin thường nâng lên cùng với càng nâng, nhưng lại quan trọng hơn đối với xe xếp. Nếu điều kiện làm việc của bạn không lý tưởng và sự chênh lệch chiều cao cũng như độ dốc là đáng kể, hãy chú ý đến xe nâng có chức năng nâng đôi, cho phép bạn tăng khoảng trống dưới khung nâng.
- Chiều rộng lối đi cho pallet, Ast mm – thông số này hiển thị khoảng cách lý thuyết giữa các hàng xếp chồng mà thiết bị có thể chất vào và dỡ khỏi giá theo một góc vuông so với lối đi. Thông số được tính toán có tính đến loại thiết bị, bán kính quay vòng của nó (xem bên dưới ảnh hưởng của vị trí bánh dẫn động đến bán kính quay vòng), các thông số pallet và tải trọng, đồng thời cũng phải tính đến khoảng cách an toàn bổ sung của 200 mm. Lưu ý rằng khoảng cách an toàn thường là công cụ thao tác để giảm thông số Ast. Nếu chiều rộng lối đi có sẵn không có lề và cực kỳ gần với thông số của thiết bị được đề cập, chúng tôi khuyên bạn nên kiểm tra xem thông số này có được tính toán chính xác hay không và liệu khoảng cách an toàn có được tính đến trong tính toán hay không.
- Bán kính quay của thiết bị (Bán kính quay, Wa mm) là thông số đặc trưng cho khả năng cơ động của thiết bị. Cũng giống như Ast thường là đối tượng bị thao túng. Thông số này có thể khác nhau khi rẽ theo các hướng khác nhau đối với thiết bị có cơ cấu truyền động lệch khỏi đường tâm và cũng khác biệt đáng kể đối với xe đẩy tự hành có càng nâng lên và hạ xuống. Hãy chú ý đến thông số này và các phương pháp tính đến nó khi so sánh các thiết bị khác nhau, làm rõ các giá trị được chỉ định cho điều kiện nào. Tham số này là cần thiết để tính toán kích thước của khu vực dành cho thiết bị tiện.
Dữ liệu Hiệu suất là một nhóm các thông số cho thấy bạn có thể xử lý hàng hóa của mình hiệu quả như thế nào. Có tính đến tốc độ di chuyển tối đa, nâng và hạ, khả năng vượt dốc, v.v. Khi xem xét các thông số này, các thông số lớn hơn không phải lúc nào cũng tốt hơn cho các ứng dụng khác nhau, hãy xem xét đặc điểm khu vực làm việc của bạn, trình độ của người vận hành, độ an toàn và tầm nhìn của các khu vực khi rẽ. Tốc độ nâng và hạ phuộc thường có thể được điều chỉnh. Độ lớn của độ dốc cần khắc phục được biểu thị bằng %, điều này thực tế hơn so với sử dụng độ dốc tính bằng độ, vì có thể dễ dàng đo được độ cao của chênh lệch sàn và chiều dài của đoạn đường nối và có thể dễ dàng thực hiện các phép tính tương ứng: H/Lx100%, trong đó H là chiều cao chênh lệch sàn, L là chiều dài đoạn đường nối có sẵn, được đo ở mức sàn (chân).
Thông số động cơ (Động cơ điện) – nhóm thông số này chứa thông tin về loại động cơ được sử dụng, chú ý đến các giá trị ngưỡng nên khi công suất của động cơ đẩy lớn hơn 4 kW thì Hộ chiếu xe tự hành được cấp yêu cầu.
- Xin lưu ý rằng công suất của động cơ điện được biểu thị ở các mức nhất định S2 60 phút, S3 4,5%, v.v. (hoặc chế độ vận hành). Khi so sánh xếp hạng công suất động cơ cho các thiết bị khác nhau, hãy xem xét các giá trị xếp hạng. Vì mục đích của bài viết này, chúng tôi chỉ ra rằng số xếp hạng càng thấp thì khả năng chống lại công việc cường độ cao của động cơ càng cao. Trong một định mức, thông số càng cao thì độ bền của động cơ khi làm việc cường độ cao càng cao, theo thứ tự giảm dần S1 > S2 60 phút > S2 45 phút > S3. S1 – chế độ vận hành liên tục, S2 – chế độ vận hành ngắn hạn, S3 – chế độ vận hành ngắt quãng định kỳ của động cơ điện.
- Dung lượng pin (Dung lượng danh nghĩa Ah) - có thể được biểu thị ở các chế độ khác nhau, xếp hạng tiêu chuẩn là 5 giờ, tuy nhiên, để thao tác thông số này, đôi khi các giá trị dung lượng lớn hơn thu được khi xả với dòng điện thấp hơn được chỉ định (ví dụ: đánh giá là 20 giờ), điều này gây hiểu nhầm và làm biến dạng hình ảnh một cách đáng kể.
- Tiêu thụ năng lượng kWh/h – thông số hiệu suất năng lượng, càng thấp càng tốt. Tuy nhiên, nó có thể được đo theo các tiêu chuẩn khác nhau theo chu trình tiêu chuẩn VDI hoặc theo EN16796. Khi so sánh các tham số này, hãy đảm bảo rằng dữ liệu được chỉ định bằng các phương pháp tương tự.
- Dữ liệu bổ sung – các thông số bổ sung như độ ồn, dung tích bình dầu, dung tích bình xăng, số vòng quay của vô lăng, v.v.
Khả năng chịu tải dư là thông số không được thể hiện trong các bảng có thông số VDI2198 nhưng lại rất quan trọng khi lựa chọn thiết bị.
Dấu phân biệt là phần có những thông số cơ bản, cơ bản nhất, từ đó bắt đầu việc lựa chọn thiết bị. Các thông số bao gồm kiểu máy, loại nguồn điện được sử dụng, loại thiết bị (dây dẫn, bệ, đứng hoặc ngồi), sức nâng, tâm tải, khoảng cách từ trục con lăn đến bề mặt trước của càng nâng và kích thước chiều dài cơ sở.
Trong nhóm này, ngoài các tham số rõ ràng, cần chú ý đến các tham số ít rõ ràng hơn nhưng không kém phần quan trọng:
- Khoảng cách trung tâm tải (C mm) - thông số này có nghĩa là khoảng cách trọng tâm của tải của bạn có thể được đặt từ bề mặt phía trước của càng nâng. Thông số điển hình cho pallet Euro là 600 mm - bằng một nửa chiều dài của pallet tiêu chuẩn. Tuy nhiên, giá trị chỉ có giá trị nếu pallet được chất đều. Nếu tâm tải tăng (chiều dài pallet vượt quá 1200 mm hoặc tải không đồng đều) thì khả năng nâng thực tế của thiết bị sẽ giảm để đảm bảo độ ổn định của máy và vận hành an toàn.
- Khoảng cách từ trục các con lăn đến mặt trước càng nâng (Khoảng cách tải, tâm trục dẫn động đến càng nâng, X mm) – thông số này ảnh hưởng trực tiếp đến đặc tính cơ động và ổn định của thiết bị (càng nhỏ thì càng nhỏ). bán kính quay vòng, tuy nhiên đối với một số thiết bị, ví dụ như máy xếp, việc giảm sẽ làm giảm độ ổn định). Mặt khác, đối với xe đẩy tự hành, thông số này rất quan trọng nếu bạn đang làm việc với pallet không đạt tiêu chuẩn hoặc pallet đóng, bởi vì trong trường hợp này, nếu thiết bị có kích thước không phù hợp có thể làm hỏng thùng chứa.
Nhóm thông số phân bổ trọng lượng và tải dọc theo các trục (Trọng lượng) – tính đến các thông số này liên quan đến lớp phủ sàn nơi thiết bị sẽ được vận hành. Theo dõi tải trọng cụ thể trên bề mặt nếu nó bị giới hạn trong phòng của bạn.
Trọng lượng sử dụng (kg) – có thể được chỉ định khi có hoặc không có pin.
Nhóm thông số liên quan đến kích thước bánh xe và khung xe (Lốp, khung xe) - Chú ý đến loại vật liệu phủ bánh xe sử dụng, polyurethane (Vulkolan) ưu tiên sử dụng trên sàn phẳng và khô, cao su sẽ hoạt động tốt hơn trên bề mặt ẩm ướt Tuy nhiên, những bánh xe như vậy sẽ bị mòn nhanh hơn. Việc lựa chọn loại bánh xe phải được tính đến các điều kiện vận hành của bạn; theo quy định, việc thay thế bánh xe bằng loại được yêu cầu không gây ra bất kỳ khó khăn lớn nào.
- Kích thước bánh xe nên được tính đến dựa trên các tiêu chí đơn giản - đường kính và chiều rộng nhỏ hơn sẽ mòn nhanh hơn. Đường kính lớn hơn giúp khắc phục các mặt sàn không bằng phẳng dễ dàng hơn.
- Công thức bánh xe (Bánh xe, số trước/sau) - cho phép bạn hiểu cách tổ chức khung gầm của thiết bị. Các bánh dẫn động có kèm theo chỉ số “x”. Sử dụng ví dụ về công thức 1x+1/4 cho xe xếp, bạn có thể thấy rằng chúng ta có thiết bị có động cơ dẫn động nằm ở bên cạnh, được trang bị một bánh xe bên và bốn con lăn càng nâng. Liên hệ với đối tác của bạn để xác định cấu hình bánh xe được đề xuất cho điều kiện vận hành của bạn. Sự hiện diện của các mối nối, sự không đều, chiều rộng càng nâng, loại lớp phủ và các điều kiện bên ngoài phải được tính đến khi lựa chọn thiết bị. Đối với bề mặt nhẵn, khô, công thức phổ biến nhất là 1x+1/2, 1x+1/4, 1x+2/4 đối với xe nâng và xe đẩy, công thức này sẽ là 1x+2.
Kích thước - một nhóm các thông số cơ bản đặc trưng cho kích thước của thiết bị. Chúng tôi khuyên bạn nên chú ý đến các thông số sau:

- Kích thước của cột khi gập lại (Chiều cao cột được hạ xuống, h1 mm) – chú ý đến sự phù hợp của thiết bị với kích thước của cửa ra vào, cổng, khoang và kệ giá đỡ của bạn.
- Lượng nâng tự do (chiều cao nâng tự do, h2 mm) – lực nâng tự do của càng nâng – lượng nâng của càng nâng đến mức khi các phần chính của cột không được gấp lại. Chức năng này đặc biệt cần thiết nếu bạn làm việc trong phòng có trần thấp, trên xe tải, toa tàu, v.v. Hãy tính đến sự hiện diện của một lưới bổ sung trên các càng nâng vượt quá kích thước của cột khi nâng tối đa - lưới này sẽ làm giảm giá trị h2 (theo định nghĩa liên quan đến tiêu chuẩn VDI2198).
- Chiều cao nâng (Chiều cao nâng, h3 mm) là thông số kỹ thuật chính; xin lưu ý rằng theo tiêu chuẩn VDI2198, tất cả các thông số chiều cao được đo từ vị trí dưới của càng nâng (chiều cao hạ xuống, h13 mm). Khi lựa chọn thiết bị, hãy tính đến chiều cao của kệ giá; chúng tôi khuyên bạn nên nâng chiều cao tối đa của thiết bị cao hơn 150-200 mm so với chiều cao của kệ mà bạn định chất hàng.
- Chiều cao hạ xuống, h13 mm – chú ý đến thông số này, đặc biệt nếu bạn đang làm việc với các pallet không đạt tiêu chuẩn.
- Chiều cao tổng thể tối đa (Chiều cao cột mở rộng, h4 mm) - chiều cao tổng thể tối đa khi càng nâng lên hoàn toàn, có tính đến kích thước của lưới bảo vệ, bởi vì Theo quy định, kích thước này được biểu thị không có lưới tản nhiệt nếu lưới tản nhiệt là tùy chọn.
- Chiều dài của thiết bị tính đến mặt trước của càng nâng (l2 mm) – thông số này đặc trưng cho mức độ nhỏ gọn của thiết bị. Đây là khoảng cách bạn cần thêm vào chiều dài của pallet nếu càng nâng nằm hoàn toàn bên dưới pallet. Kích thước l2 ảnh hưởng trực tiếp đến khả năng cơ động của thiết bị. Đối với những nhà kho có diện tích, không gian chật hẹp thì l2 càng nhỏ càng tốt.
- Chiều rộng tổng thể (Chiều rộng tổng thể, b1 mm) – ảnh hưởng đến khả năng cơ động của thiết bị; đối với thiết bị nhẹ và làm việc trong điều kiện chật hẹp, chiều rộng của thiết bị phải tương xứng hoặc nhỏ hơn chiều rộng của pallet.
- Kích thước càng nâng (Kích thước càng nâng, s/e/l mm), Chiều rộng càng nâng (b5 mm) - xem xét các thông số này liên quan đến thùng chứa của bạn và loại pallet được sử dụng. Theo quy định, các nhà sản xuất khác nhau có các thông số sẵn có gần giống nhau được thiết kế cho các thùng chứa tiêu chuẩn. Tuy nhiên, các thông số kỹ thuật này thường yêu cầu thay đổi khi làm việc với các pallet và hàng hóa không đạt tiêu chuẩn. Liên hệ với nhà cung cấp của bạn để kiểm tra xem có thể sản xuất phiên bản đặc biệt hay không.
- Khoảng sáng gầm ở giữa đế (Khoảng sáng gầm, m2 mm) - thông số này đặc biệt quan trọng nếu thiết bị làm việc trên sàn không bằng phẳng hoặc vượt qua các đường dốc và chướng ngại vật, đặc biệt nếu các đường dốc ngắn với độ cao chênh lệch đáng kể. Trong trường hợp này, rất có thể khung gầm của thiết bị sẽ chạm sàn và thiết bị sẽ không thể hoạt động bình thường. Thông số này ít quan trọng hơn đối với xe đẩy tự hành, vì ngăn chứa pin thường nâng lên cùng với càng nâng, nhưng lại quan trọng hơn đối với xe xếp. Nếu điều kiện làm việc của bạn không lý tưởng và sự chênh lệch chiều cao cũng như độ dốc là đáng kể, hãy chú ý đến xe nâng có chức năng nâng đôi, cho phép bạn tăng khoảng trống dưới khung nâng.
- Chiều rộng lối đi cho pallet, Ast mm – thông số này hiển thị khoảng cách lý thuyết giữa các hàng xếp chồng mà thiết bị có thể chất vào và dỡ khỏi giá theo một góc vuông so với lối đi. Thông số được tính toán có tính đến loại thiết bị, bán kính quay vòng của nó (xem bên dưới ảnh hưởng của vị trí bánh dẫn động đến bán kính quay vòng), các thông số pallet và tải trọng, đồng thời cũng phải tính đến khoảng cách an toàn bổ sung của 200 mm. Lưu ý rằng khoảng cách an toàn thường là công cụ thao tác để giảm thông số Ast. Nếu chiều rộng lối đi có sẵn không có lề và cực kỳ gần với thông số của thiết bị được đề cập, chúng tôi khuyên bạn nên kiểm tra xem thông số này có được tính toán chính xác hay không và liệu khoảng cách an toàn có được tính đến trong tính toán hay không.
- Bán kính quay của thiết bị (Bán kính quay, Wa mm) là thông số đặc trưng cho khả năng cơ động của thiết bị. Cũng giống như Ast thường là đối tượng bị thao túng. Thông số này có thể khác nhau khi rẽ theo các hướng khác nhau đối với thiết bị có cơ cấu truyền động lệch khỏi đường tâm và cũng khác biệt đáng kể đối với xe đẩy tự hành có càng nâng lên và hạ xuống. Hãy chú ý đến thông số này và các phương pháp tính đến nó khi so sánh các thiết bị khác nhau, làm rõ các giá trị được chỉ định cho điều kiện nào. Tham số này là cần thiết để tính toán kích thước của khu vực dành cho thiết bị tiện.
Dữ liệu Hiệu suất là một nhóm các thông số cho thấy bạn có thể xử lý hàng hóa của mình hiệu quả như thế nào. Có tính đến tốc độ di chuyển tối đa, nâng và hạ, khả năng vượt dốc, v.v. Khi xem xét các thông số này, các thông số lớn hơn không phải lúc nào cũng tốt hơn cho các ứng dụng khác nhau, hãy xem xét đặc điểm khu vực làm việc của bạn, trình độ của người vận hành, độ an toàn và tầm nhìn của các khu vực khi rẽ. Tốc độ nâng và hạ phuộc thường có thể được điều chỉnh. Độ lớn của độ dốc cần khắc phục được biểu thị bằng %, điều này thực tế hơn so với sử dụng độ dốc tính bằng độ, vì có thể dễ dàng đo được độ cao của chênh lệch sàn và chiều dài của đoạn đường nối và có thể dễ dàng thực hiện các phép tính tương ứng: H/Lx100%, trong đó H là chiều cao chênh lệch sàn, L là chiều dài đoạn đường nối có sẵn, được đo ở mức sàn (chân).
Thông số động cơ (Động cơ điện) – nhóm thông số này chứa thông tin về loại động cơ được sử dụng, chú ý đến các giá trị ngưỡng nên khi công suất của động cơ đẩy lớn hơn 4 kW thì Hộ chiếu xe tự hành được cấp yêu cầu.
- Xin lưu ý rằng công suất của động cơ điện được biểu thị ở các mức nhất định S2 60 phút, S3 4,5%, v.v. (hoặc chế độ vận hành). Khi so sánh xếp hạng công suất động cơ cho các thiết bị khác nhau, hãy xem xét các giá trị xếp hạng. Vì mục đích của bài viết này, chúng tôi chỉ ra rằng số xếp hạng càng thấp thì khả năng chống lại công việc cường độ cao của động cơ càng cao. Trong một định mức, thông số càng cao thì độ bền của động cơ khi làm việc cường độ cao càng cao, theo thứ tự giảm dần S1 > S2 60 phút > S2 45 phút > S3. S1 – chế độ vận hành liên tục, S2 – chế độ vận hành ngắn hạn, S3 – chế độ vận hành ngắt quãng định kỳ của động cơ điện.
- Dung lượng pin (Dung lượng danh nghĩa Ah) - có thể được biểu thị ở các chế độ khác nhau, xếp hạng tiêu chuẩn là 5 giờ, tuy nhiên, để thao tác thông số này, đôi khi các giá trị dung lượng lớn hơn thu được khi xả với dòng điện thấp hơn được chỉ định (ví dụ: đánh giá là 20 giờ), điều này gây hiểu nhầm và làm biến dạng hình ảnh một cách đáng kể.
- Tiêu thụ năng lượng kWh/h – thông số hiệu suất năng lượng, càng thấp càng tốt. Tuy nhiên, nó có thể được đo theo các tiêu chuẩn khác nhau theo chu trình tiêu chuẩn VDI hoặc theo EN16796. Khi so sánh các tham số này, hãy đảm bảo rằng dữ liệu được chỉ định bằng các phương pháp tương tự.
- Dữ liệu bổ sung – các thông số bổ sung như độ ồn, dung tích bình dầu, dung tích bình xăng, số vòng quay của vô lăng, v.v.
Khả năng chịu tải dư là thông số không được thể hiện trong các bảng có thông số VDI2198 nhưng lại rất quan trọng khi lựa chọn thiết bị.
Chú ý: Việc đăng lại bài viết trên ở website hoặc các phương tiện truyền thông khác mà không ghi rõ nguồn https://nukeviet.vn là vi phạm bản quyền
Bình luận
Viết bình luận của bạn